























penthouse
NYBYGGT BOSTADSOMRÅDE I PRIVAT GATED RESORT I PROVINSEN MURCIA
Murcia, Torre Pacheco, Santa Rosalia Lake and Life Resort
388 900 €
67 m2
2 beds
2 baths
Pool
New Build
Interested in this property?
Get in touch with our team
Om denna fastighet
NYBYGGT BOSTADSOMRÅDE I PRIVAT GATED RESORT I PROVINSEN MURCIA
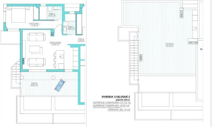
Nybyggd bostadsområde har 60 lägenheter fördelade på 4 block med terrass för bottenvåningen, första och andra våningen, gemensam pool, uppvärmd pool och solarium med sommarkök på takvåningarna, för att njuta av alla soltimmar varje dag på året.
Fastigheterna har 2 sovrum och 2 badrum samt parkeringsplats och förråd i källaren.
Dessa bostäder är utformade med en modern stil och ett öppet planerat koncept som består av ett fullt utrustat kök och vardagsrum/matsal.
Fastigheterna kommer att uppfylla de högsta standarderna och ingår:
Kök helt möblerat och utrustat med ugn och mikrovågsugn i kolonn, integrerad kylskåp och diskmaskin, induktionshäll och fläkt.
LED-belysning: inne i fastigheten (matsal, kök, korridorer och badrum) och även i utomhusområden.
Fodrade garderober med lådor.
Motoriserade persienner i sovrummen.
Golvvärme i badrummen.
Fullt utrustade badrum med toalett, kommod, spegel, dusch med regneffekt och skärmpaneler.
Förinstallation för luftkonditionering med kanal.
Förinstallation av laddningspunkt för elfordon.
Solarium med sommarkök, med förinstallation för elektriska apparater.
Gemensam pool.
Uppvärmd pool.
Parkeringsplats och förråd i källaren.
Ligger i en privat gated resort, med en huvudingång och 24 timmars säkerhet. Anläggningen är utformad runt ett imponerande grönområde på 126 000 m2.
Den omfattar gång- och cykelvägar, idrottsanläggningar, paddel- och tennisbanor, en minigolfbana, trädgårdar, hundparker, fritidsområden, klubbhus..... I det centrala området finns också ortens juvel, en kristallklar konstgjord sjö med nästan 17 000 m2 vattenyta, omgiven av vita sandstränder och palmer, som ger Murcia en bit av Karibien.
Det finns två öar i sjön, en av dem har en egen bar, och det finns också "beach Chiringuitos" utspridda runt sjön.
Anläggningen är strategiskt belägen mindre än 4 km från stranden och staden Los Alcázares, där du kan utöva olika vattensporter, omgiven av flera golfbanor och staden Cartagena mindre än 15 minuter med bil och 22 km från Murcias flygplats, vilket gör att du har ett brett kulturellt, gastronomiskt och sportsligt utbud inom räckhåll.
Fastighetsdetaljer
- Nybyggnation:
- Ja
- Pris:
- 388 900 €
- Typ:
- penthouse
- Bostadsyta:
- 67 m²
- Sovrum:
- 2
- Badrum:
- 2
- Pool:
- Ja
Relaterade fastigheter
Loading...