















villa
Exklusiva villor och bungalows på Costa Cálida - design, komfort och privilegierat läge
Murcia, Los Alcazares, Serena Golf
599 000 €
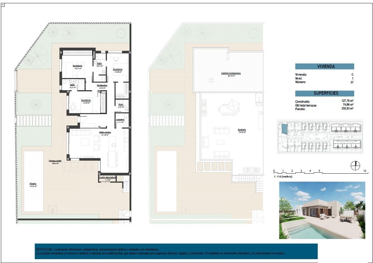
122 m2
3 beds
3 baths
Pool
New Build
Interested in this property?
Get in touch with our team
Om denna fastighet
Exklusiva villor och bungalows på Costa Cálida - design, komfort och privilegierat läge
Ett projekt som förenar avskildhet och gemenskap
Upptäck ett nytt bostadskoncept på Costa Cálida, utformat för dem som söker den perfekta kombinationen av avskildhet, komfort och socialt liv. Detta exklusiva komplex erbjuder fristående villor och bungalows med tillgång till rymliga gemensamma utrymmen och en gemensam pool, vilket ger det bästa av två världar: lugnet i ett privat hem och komforten i gemensamma utrymmen att njuta av med vänner, familj och grannar.
Alla bostäder har en parkeringsplats och ett förråd i källaren, vilket garanterar säkerhet och bekvämlighet för de boende.
Modern design och möjligheter till personlig anpassning
Det här bostadsområdet erbjuder ett brett utbud av bostäder som passar olika behov och livsstilar:
Bungalows på bottenvåningen med privata trädgårdar på upp till 122 m².
Bungalows på översta våningen med stora terrasser och privat solarium.
Fristående villor i en eller två våningar med tomter på 201-356 m² och olika planlösningar och ytbehandlingar.
Varje hem är utformat för att maximera det naturliga ljuset och skapa rymliga och välkomnande utrymmen. Master-sviten har noggrant utformats för att garantera avskildhet och komfort genom att helt separera sovrummet från badrummet, så att man undviker ljus- eller ljudstörningar under natten.
Kvalitet och hållbarhet i varje detalj
Dessa bostäder har byggts med högkvalitativa material och utrustats med hållbar teknik, t.ex. solpaneler och aerotermik, för att förbättra energieffektiviteten.
Utmärkande egenskaper:
Motordrivna persienner i sovrummen.
Pansarförsedd ytterdörr för ökad säkerhet.
Förinstallation av kanaliserad luftkonditionering.
Moderna badrum med skiljeväggar i härdat glas och hängande möbler med LED-spegel.
Strategiskt läge i Los Alcázares
Detta komplex ligger bara några meter från den prestigefyllda golfbanan Serena och 1 km från stränderna i Mar Menor och har ett privilegierat läge i Los Alcázares, ett av de mest lovande områdena på Costa Cálida.
Dessutom ger den enkla tillgången till motorvägen AP-7 snabb anslutning till andra destinationer i regionen och underlättar tillgången till viktiga tjänster som stormarknader, sportcenter, skolor och apotek.
Avstånd till intressanta platser
La Serena Golf - 1 km (2 minuter med bil).
Mar Menor Beach - 1 km (2 minuter med bil eller 10 minuter promenad).
Murcia Airport - 35 km (30 minuter med bil).
Cartagena Port - 22 km (20 minuter med bil).
Lokalt köpcentrum - 3 km (5 minuter med bil).
Medelhavsstil med hög lönsamhet
Detta projekt är inte bara ett utmärkt alternativ för att njuta av Medelhavets livsstil, utan det är också en säker investering i ett växande område.
Missa inte denna unika möjlighet. Kontakta oss idag för mer information och för att reservera ditt idealiska hem på Costa Cálida.
Fastighetsdetaljer
- Nybyggnation:
- Ja
- Pris:
- 599 000 €
- Typ:
- villa
- Bostadsyta:
- 122 m²
- Sovrum:
- 3
- Badrum:
- 3
- Pool:
- Ja
Relaterade fastigheter
Loading...