





apartment
Moderna lägenheter med fantastisk utsikt över vingårdar i Hondón de las Nieves
Alicante, Hondón de las Nieves, Pueblo
250 000 €
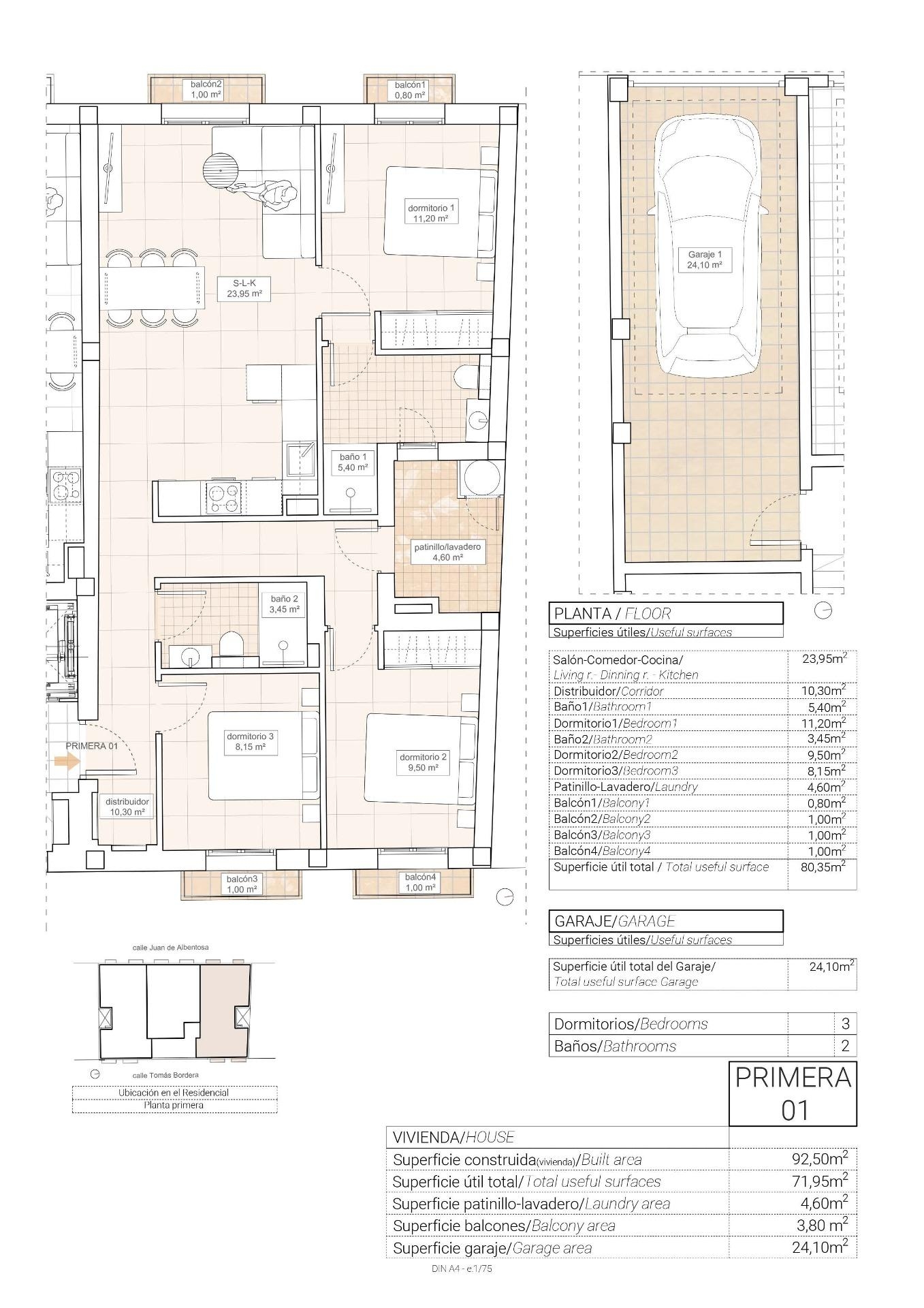
92 m2
3 beds
2 baths
New Build
Interested in this property?
Get in touch with our team
Om denna fastighet
Moderna lägenheter med fantastisk utsikt över vingårdar i Hondón de las Nieves
Stilfulla nybyggda lägenheter i en fridfull dalmiljö
Upptäck dessa moderna lägenheter i Hondón de las Nieves, en charmig stad som ligger inbäddad i en pittoresk dal omgiven av olivlundar och mandelträd. Detta exklusiva bostadskomplex erbjuder lägenheter med 1, 2 och 3 sovrum, alla utformade för att ge komfort, energieffektivitet och hisnande utsikt över Vinalopó-vingårdarna.
Detta lugna område ligger i Vinalopó Medio-regionen och är perfekt för dem som söker en avslappnad medelhavslivsstil med enkel tillgång till naturen och viktiga tjänster.
Högkvalitativa funktioner för ett modernt boende
Varje lägenhet är byggd med förstklassiga material och ytbehandlingar, vilket garanterar både stil och funktionalitet:
Rymliga interiörer med öppna planlösningar.
Fullt möblerade kök med bänkskivor i granit.
Avancerade badrum med inbyggda cisterner och sanitetsarmaturer av högsta kvalitet.
Energieffektiv design med aerotermisk vattenuppvärmning.
Förinstallerad kanaliserad luftkonditionering för komfort året runt.
Dubbelglasade aluminiumfönster med värmeisolering.
Förstärkt säkerhetsdörr för extra sinnesfrid.
Privat garage på bottenvåningen ingår.
Tillgång till hiss för bekvämlighet.
Dessutom är solpaneler installerade på taket för att förbättra energieffektiviteten och minska kostnaderna för el och vatten.
Förstklassigt läge i Hondón de las Nieves
Hondón de las Nieves är en charmig spansk by som är känd för sin vinproduktion, traditionella kultur och natursköna landskap. Staden har historiska byggnader, lokala marknader och naturliga vandringsleder, vilket gör det till en fantastisk plats för både permanent boende och semesterresor.
Detta nya bostadsområde ligger i ett lugnt område med goda förbindelser och erbjuder enkel tillgång till viktiga tjänster och viktiga platser:
Alicantes flygplats - 30 km (30 minuters bilresa)
Stränderna i Alicante - 35 km (35 minuters bilresa)
Elche - 20 km (20 minuters bilresa)
Crevillente naturpark - 10 km (15 minuters bilresa)
Golfbanor - 25 km (30 minuters bilresa)
Ditt perfekta hem i hjärtat av Alicantes landsbygd
Njut av lugnet i Hondón-dalen samtidigt som du bor nära de livliga städerna Alicante och Elche. Oavsett om du letar efter ett fritidshus, en investeringsfastighet eller en lugn plats att bo på året runt, är dessa moderna lägenheter det perfekta valet.
Kontakta oss idag för mer information eller för att boka en visning!
Fastighetsdetaljer
- Nybyggnation:
- Ja
- Pris:
- 250 000 €
- Typ:
- apartment
- Bostadsyta:
- 92 m²
- Sovrum:
- 3
- Badrum:
- 2
- Pool:
- Nej
Relaterade fastigheter
Loading...