









apartment
Exklusiva nybyggda lägenheter med utsikt över vingårdarna i Hondón de las Nieves
Alicante, Hondón de las Nieves, Pueblo
215 000 €
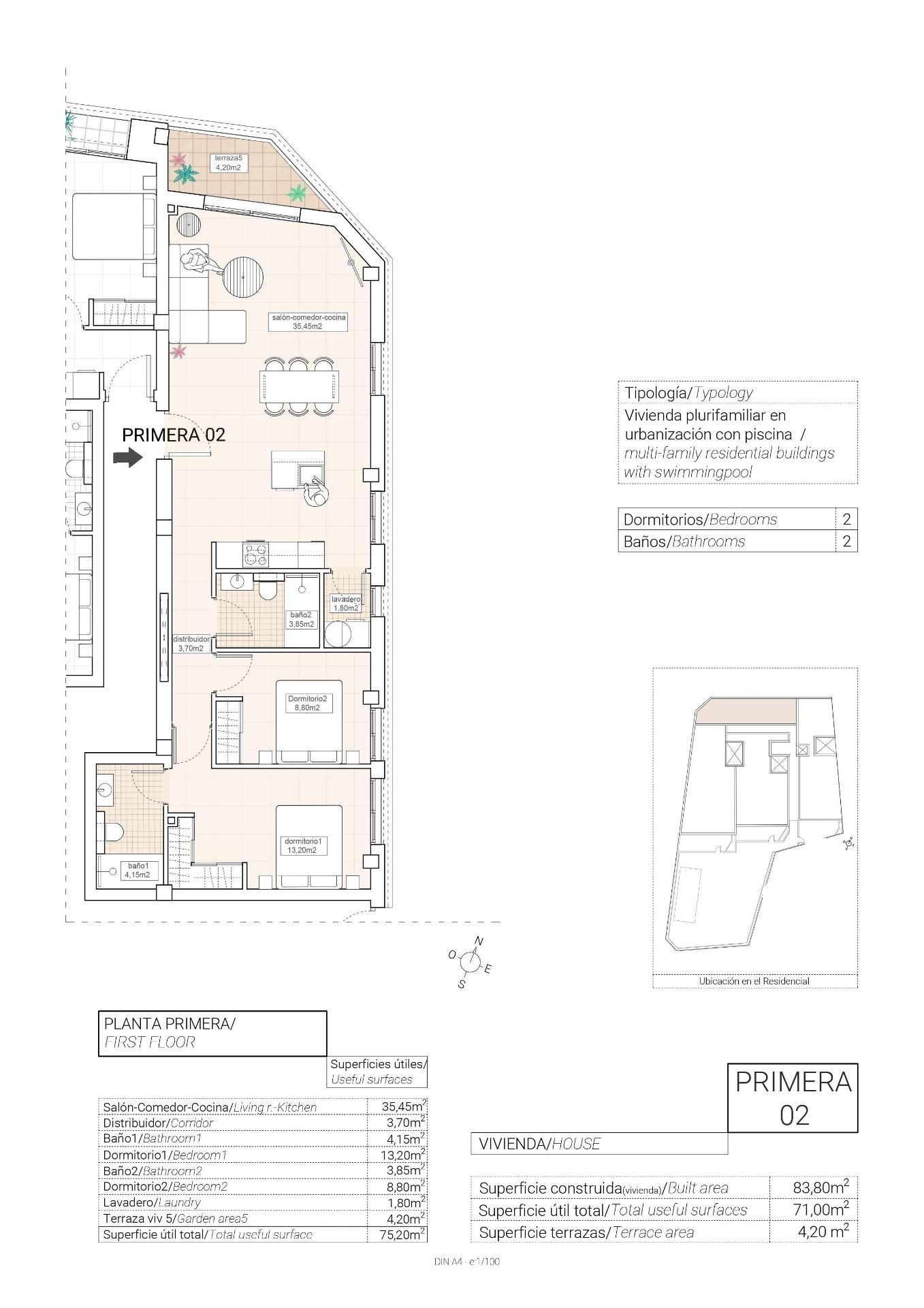
83 m2
2 beds
2 baths
Pool
New Build
Interested in this property?
Get in touch with our team
Om denna fastighet
Exklusiva nybyggda lägenheter med utsikt över vingårdarna i Hondón de las Nieves
Moderna hem i en unik naturmiljö
Upptäck detta nya lägenhetsprojekt i Hondón de las Nieves, en charmig by som ligger i en vacker dal omgiven av oliv- och mandelodlingar. Här finns 15 exklusiva bostäder med 2 och 3 sovrum, alla utformade för att erbjuda maximal komfort, energieffektivitet och fantastisk utsikt över Vinalopós vingårdar.
Denna fridfulla enklav ligger i Vinalopó Medio och är idealisk för dem som söker en avslappnad livsstil i Medelhavsområdet, med enkel tillgång till naturen och alla viktiga tjänster.
Hög kvalitet och modern design
Varje lägenhet har utformats med material av högsta kvalitet och en funktionell layout, som erbjuder:
Rymliga vardagsrum med öppen planlösning, perfekt för ett modernt boende.
Fullt utrustade kök med bänkskivor i granit.
Toppmoderna badrum med inbyggda cisterner och sanitetsartiklar av högsta kvalitet.
Energieffektivitet med aerotermiskt system för varmvatten.
Förinstallation av luftkonditionering med kanaler, vilket garanterar komfort under alla årstider.
Aluminiumfönster med dubbla glasrutor som ger termisk och akustisk isolering.
Förstärkt säkerhetsdörr för sinnesfrid.
Parkeringsplats och förråd i källaren, ingår i priset.
Hiss i byggnaden, vilket garanterar tillgänglighet och komfort.
Solpaneler på taket för att förbättra energieffektiviteten och minska underhållskostnaderna.
Dessutom har bostadsområdet en gemensam pool, perfekt för att njuta av Medelhavsklimatet.
Privilegierat läge i Hondón de las Nieves
Hondón de las Nieves är en stad med en stor vinodlingstradition, känd för sina bordsdruvor med ursprungsbeteckningen Vinalopó. Området är omgivet av Sierra de Crevillente och erbjuder många vandringsleder, naturområden och ett rikt kulturellt och historiskt utbud.
Från ditt nya hem har du snabb tillgång till de viktigaste intressanta platserna i området:
Alicantes flygplats - 30 km (30 minuter med bil).
Alicantes stränder - 35 km (35 minuter med bil)
Elche - 20 km (20 minuter med bil)
Crevillente naturpark - 10 km (15 minuters bilresa)
Golfbanor - 25 km (30 minuters bilresa)
Ett idealiskt hem på Costa Blanca
Njut av lugnet i Hondón-dalen, utan att ge upp närheten till Alicante och Elche. Oavsett om det är som permanent bostad, fritidshus eller investeringsobjekt är dessa moderna lägenheter ett oslagbart val.
Kontakta oss idag för mer information eller för att ordna en visning.
Fastighetsdetaljer
- Nybyggnation:
- Ja
- Pris:
- 215 000 €
- Typ:
- apartment
- Bostadsyta:
- 83 m²
- Sovrum:
- 2
- Badrum:
- 2
- Pool:
- Ja
Relaterade fastigheter
Loading...