








































villa
Moderna nybyggda villor i Dolores, Alicante
Alicante, Dolores, Sector 3
465 000 €
183 m2
3 beds
2 baths
Pool
New Build
Interested in this property?
Get in touch with our team
Om denna fastighet
Moderna nybyggda villor i Dolores, Alicante
Modernt boende i hjärtat av Vega Baja
Upptäck detta exklusiva nybyggda villaprojekt i Dolores, en charmig stad i regionen Vega Baja del Segura, söder om Alicante. Dolores är känt för sin traditionella spanska karaktär och omges av grönskande landsbygd. Här erbjuds ett lugnt boende med alla dagliga bekvämligheter inom gångavstånd – butiker, restauranger, skolor och lokala tjänster.
Beläget bara 12 km från stränderna i La Marina och Guardamar del Segura, och med enkel tillgång till motorvägen AP-7, är detta bostadsområde perfekt anslutet till de viktigaste kuststäderna på Costa Blanca.
Eleganta moderna villor med privat pool
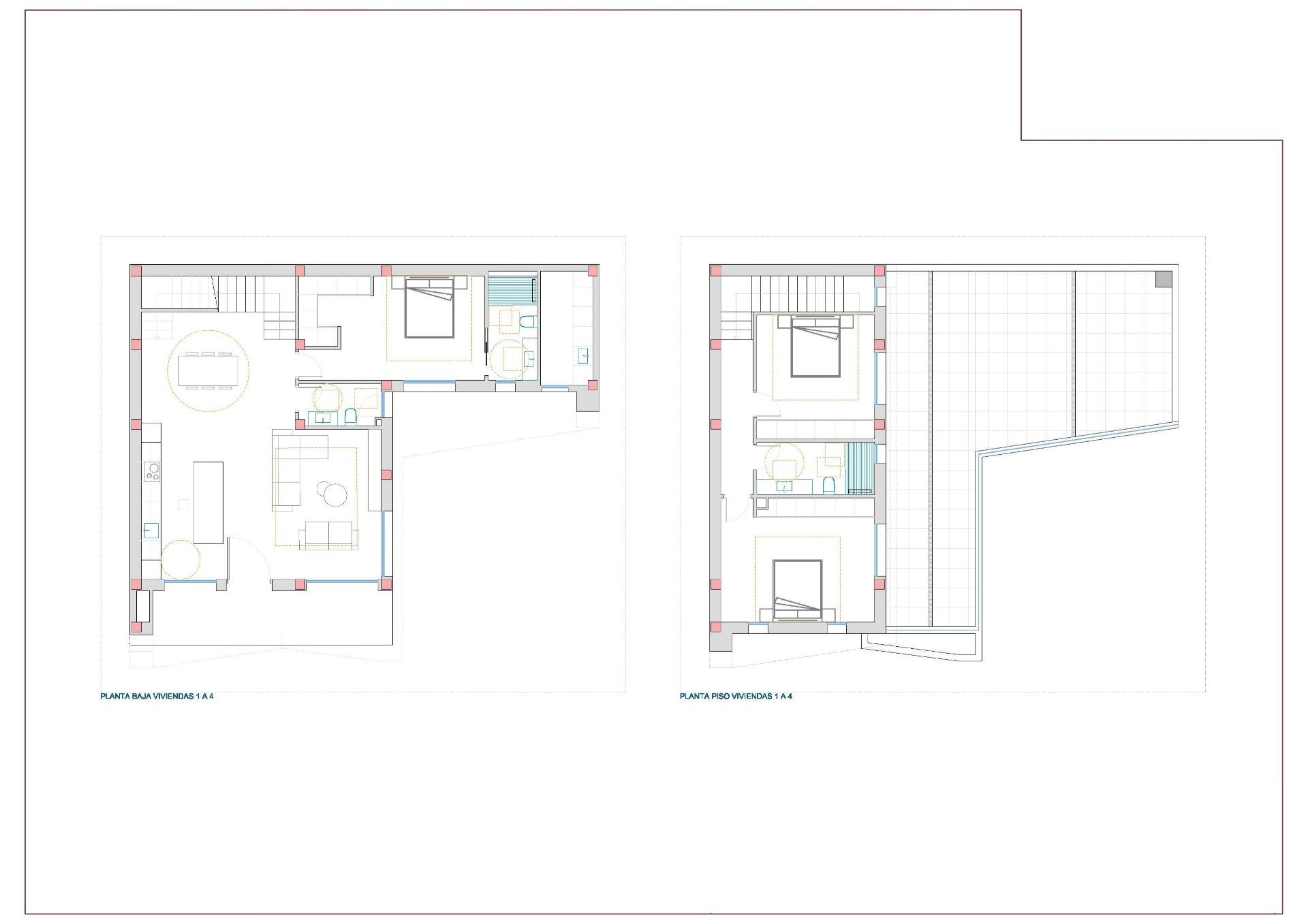
Dessa moderna tvåvåningsvillor har designats för komfort, funktionalitet och stil. På bottenvåningen finns ett ljust kök i öppen planlösning som är anslutet till vardagsrummet/matsalen, med stora skjutdörrar som öppnar direkt mot terrassen och den privata trädgården med pool. På bottenvåningen finns också ett sovrum med eget badrum, en gästtoalett och ett praktiskt tvättrum utomhus.
På första våningen finns ytterligare två sovrum, ett badrum och tillgång till en stor öppen terrass på 60 m2, perfekt för att sola eller koppla av medan du njuter av det medelhavsklimatet. Varje hus har privat parkering på tomten.
Högkvalitativa ytbehandlingar och modern komfort
Dessa villor är byggda med högkvalitativa material och modern design och är fullt utrustade för att bo i året runt. Huvudsakliga egenskaper inkluderar:
Exteriör snickeri med värmebrygga
Motoriserade persienner
Varmvattensystem som drivs av aerotermisk energi
Fullt installerad luftkonditionering med kanaler
Privat pool
Privat parkering och anlagd trädgård
Interiören kombinerar elegans och funktionalitet, maximerar det naturliga ljuset och erbjuder en exceptionell boendemiljö med en stark koppling mellan inomhus- och utomhusutrymmen.
Utmärkt läge nära allt
Dolores har ett strategiskt läge som erbjuder en balans mellan lugn och tillgänglighet.
Viktiga avstånd:
Stränderna i La Marina och Guardamar del Segura: 12 km
Alicante flygplats (Elche-El Altet): 30 km (25 minuter med bil)
Murcia-Corvera flygplats: 70 km (1 timme med bil)
Golfbanor: 15 km
Alicante stad: 40 km
Lev det medelhavsinspirerade livet i Dolores
Dessa nybyggda villor i Dolores erbjuder den perfekta kombinationen av modern design, komfort och närhet till kusten. De är idealiska både som permanentbostad och semesterbostad och erbjuder ett lugnt medelhavsinspirerat liv omgivet av natur och bekvämligheter.
Kontakta oss idag för att boka en visning och förverkliga ditt drömhus i Dolores.
Fastighetsdetaljer
- Nybyggnation:
- Ja
- Pris:
- 465 000 €
- Typ:
- villa
- Bostadsyta:
- 183 m²
- Sovrum:
- 3
- Badrum:
- 2
- Pool:
- Ja
Relaterade fastigheter
Loading...