












apartment
New Build Homes in Mijas Costa
Málaga, Mijas, Hipódromo Costa del Sol
€497,000
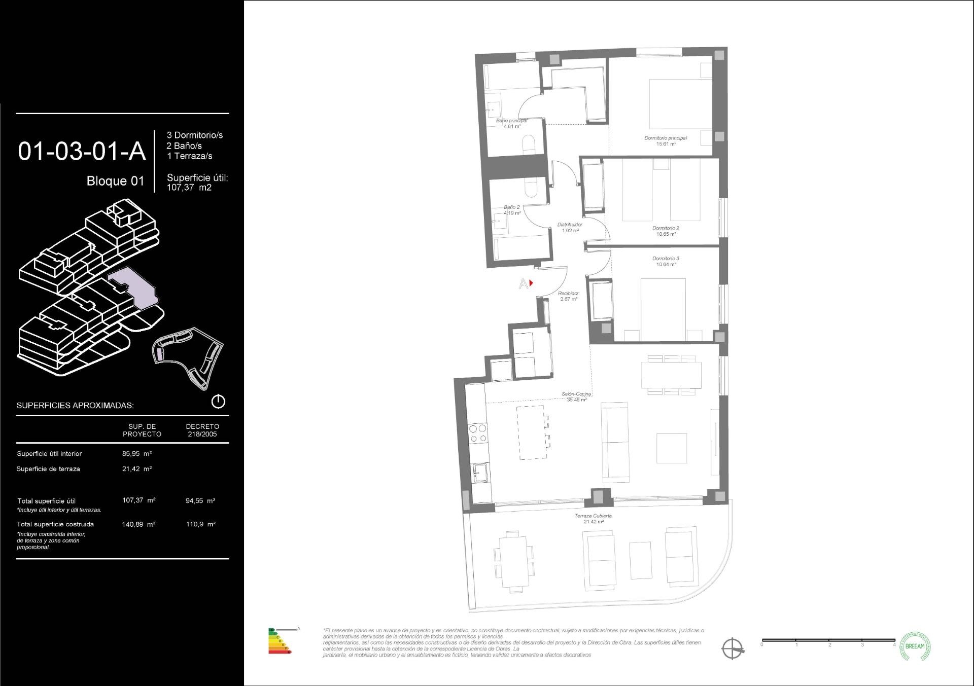
110 m2
3 beds
2 baths
Pool
New Build
Interested in this property?
Get in touch with our team
About this property
New Build Homes in Mijas Costa
Avant-garde design surrounded by nature and just minutes from the sea
This exclusive new build development in Mijas Costa perfectly combines contemporary architecture with the Mediterranean lifestyle. Located in a beautiful natural setting, the residential complex is inspired by the cliffs of the Mediterranean, offering homes that blend into the landscape with unobstructed views of the sea and mountains from the upper floors.
Apartments with large terraces, gardens or private solariums
The development offers 1, 2 and 3 bedroom homes adapted to different lifestyles.
Ground floor apartments with private gardens
Middle floor apartments with large terraces
Penthouses with private solariums and panoramic sea views
Each property has high-quality finishes and modern amenities:
Security entrance door
Fitted kitchen with appliances included
Ducted air conditioning (hot and cold)
Hot water production via aerothermal energy
Parking space included in the price
Communal areas for well-being and active living
Designed to promote a healthy lifestyle, the residential complex offers comprehensive facilities:
Two outdoor saltwater swimming pools with landscaped areas
Indoor spa with heated pool, sauna, cold bath and showers
Fully equipped gym
Coworking room with kitchen and relaxation area
Outdoor pool bar with exclusive chill-out area
Strategic location in Mijas Costa, close to everything
The development is perfectly located to enjoy both natural tranquillity and quick access to services and places of interest on the Costa del Sol:
Beach – 1.5 km
Fuengirola – 8 km
Marbella – 25 km
Malaga city – 30 km
Malaga airport – 28 km
La Cala Resort Golf Course – 10 km
Miramar shopping centre – 9 km
Just 800 metres away, the new Costa del Sol Park is under construction, a large green space with a lake, footpaths, a skate park and areas for family leisure.
Experience the authentic Mediterranean lifestyle in Mijas Costa
With its balance of nature, design and location, this project is ideal as a primary residence, second home or investment. Don't miss the opportunity to live in one of the most desirable areas of the Costa del Sol.
Contact us today for more information or to schedule a visit to your new home in Mijas Costa.
Property details
- New build:
- Yes
- Price:
- €497,000
- Type:
- apartment
- Area:
- 110 m²
- Bedrooms:
- 3
- Bathrooms:
- 2
- Pool:
- Yes
Related properties
Loading...